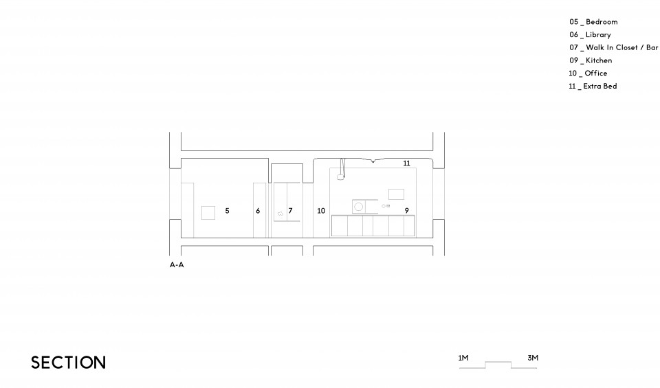
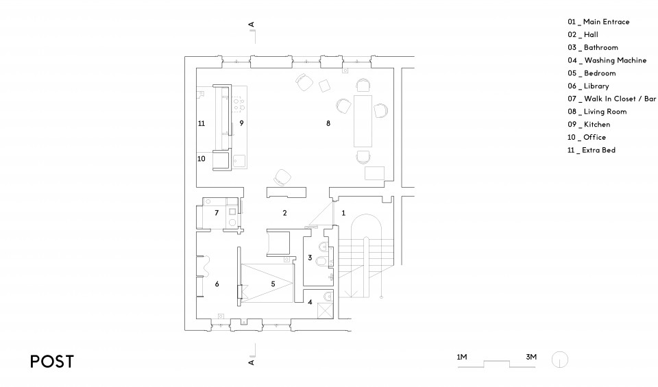
b _ Gluckstads Gate Hommage1_pre1_post1_secg _ bar office andreas tingulstadf _ gang ofice andreas tingulstadi _ bibliotek office andreas tingulstadj _ wic office andreas tingulstad01020309100405h _ bad office andreas tingulstade _ stue ofice andreas tingulstad4 2 stue12080611k _ stue office andreas tingulstad13_01a _ Ikon_01
Gluckstad Gate - Resurrection Next Prev Index
Gluckstad Gate - Resurrection
Client : Andreas Tingulstad.
Location : Oslo, St. Hanshugen.
Year : 2013.

Type : Apartment Remodel / Custom Furniture.
Size : 65 sqm. / 650 sqf.
Status : Completed.

Team : Andreas Tingulstad.

Images  : Roberto di Trani.

The intial premise behind the project was to accomodate a larger social space within the home that otherwise needed to adress a series of specific domestic needs - conceptually it also needed to serve as a catalyst for a new beginning after a series of ruptures.

The previous owner had lived in the unit for 40 years.