23_pre23_post2c532aa3-ae5e-42bf-b768-366cee4a8dfd4277c439-80f9-4718-b0e2-800ff0dda210san sebastianIMG_9573
Fashion Retail Space - Lokk I Next Prev Index
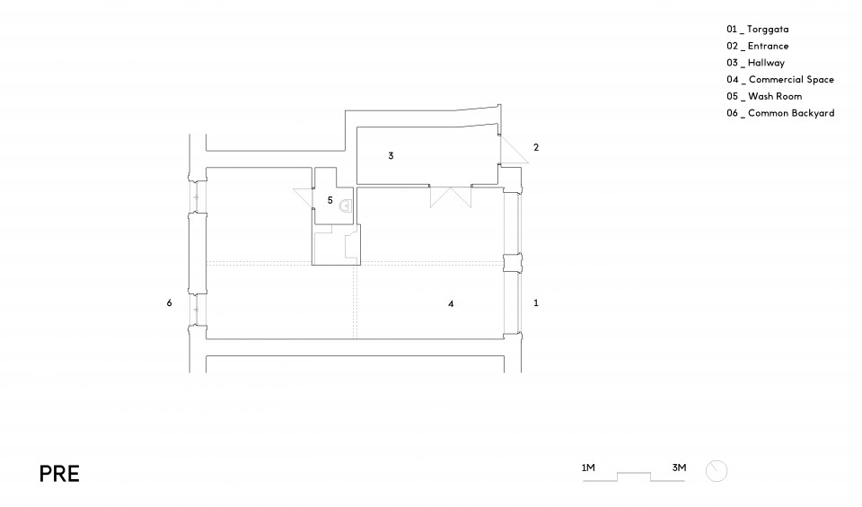
Fashion Retail Space - Lokk I
Client : Caps Lokk AS
Location : Oslo, Torggata.
Year : 2014.

Type : Office Space Interior / Showroom / Custom Furniture.
Size : 100 sqm. / 1000 sqf.
Status : Completed.

Special Thanks : Ole Alexander Mustad.
Collaborators : Bielke+Yang (graphic design), Per Christensen (blacksmith), Asha Biant (architect).
Team : Asha Biant, Andreas Tingulstad.